For Sale NEW
Escape to Nature: A Sprawling Countryside Property with Authentic Charm
Niigata, Joetsu City, Yasuzuka Dostrict
  • USD 21,071

Description


The Ultimate Lifestyle Investment: Nature, Farming, and Serenity in Joetsu

Nestled in the scenic heartland of Niigata Prefecture, this expansive property offers a unique opportunity for investors and those seeking a tranquil lifestyle change. Priced at approximately $21,071 (based on “the price of the house in JPY” at 1 USD = 140; Notary fees, processing, and taxes are not included.), this offering includes a traditional two-story Japanese home set upon a vast 36,641 m² (approx. 9 acres) of land, presenting limitless potential for development, agriculture, or a private nature retreat.

The home itself is a classic 3DK layout, featuring several traditional tatami rooms that exude authentic Japanese charm. While the year of construction is unknown, the property has been maintained and is equipped with modern conveniences such as air conditioning, a system kitchen, two toilets, and a monitor intercom system. A standout feature is the rustic, wood-fired bathtub—a rare find that offers a deeply relaxing and traditional bathing experience.

For the international investor, this property is a gateway to Japan’s famed “snow country.” It is strategically located just a 15-minute drive from the Cupid Valley Ski Resort, a popular destination for winter sports enthusiasts. The greater Joetsu area is a hub for outdoor recreation, boasting numerous ski resorts like the extensive Joetsu Kokusai Ski Resort. Beyond skiing, the region is rich in natural beauty and cultural heritage. Within a 45-minute drive, you can explore the historic Takada Castle Site Park, famous for its stunning cherry blossoms, or the ruins of Kasugayama Castle, once home to the powerful warlord Uesugi Kenshin. The beautiful Sea of Japan coast is also easily accessible for summer excursions.

The area is dotted with renowned onsen (hot springs), such as Matsunoyama Onsen, known as one of Japan’s three great medicinal hot springs, offering therapeutic relaxation. This makes the property an excellent candidate for a vacation rental, a wellness retreat, or a base for year-round tourism.

Logistically, the property is well-positioned. It is approximately a 40-minute drive to the Joetsu city center and about a 2-hour drive to Niigata Airport (KIJ), providing international access. The vast plot of land, which includes forests and arable areas, offers significant appeal for those interested in hobby farming, self-sustainability, or simply owning a large piece of Japan’s beautiful countryside. This is more than just a house; it’s an investment in a lifestyle and a foothold in a region celebrated for its nature, culture, and recreational opportunities.

Details

Property ID
AJ250075
Bedrooms
3
Bathroom
1
Property Size
154 m²
Land Area
36641 m²
Garages
3
Year Built
1950
Updated on November 1, 2025 at 1:06 am

Floor Plans

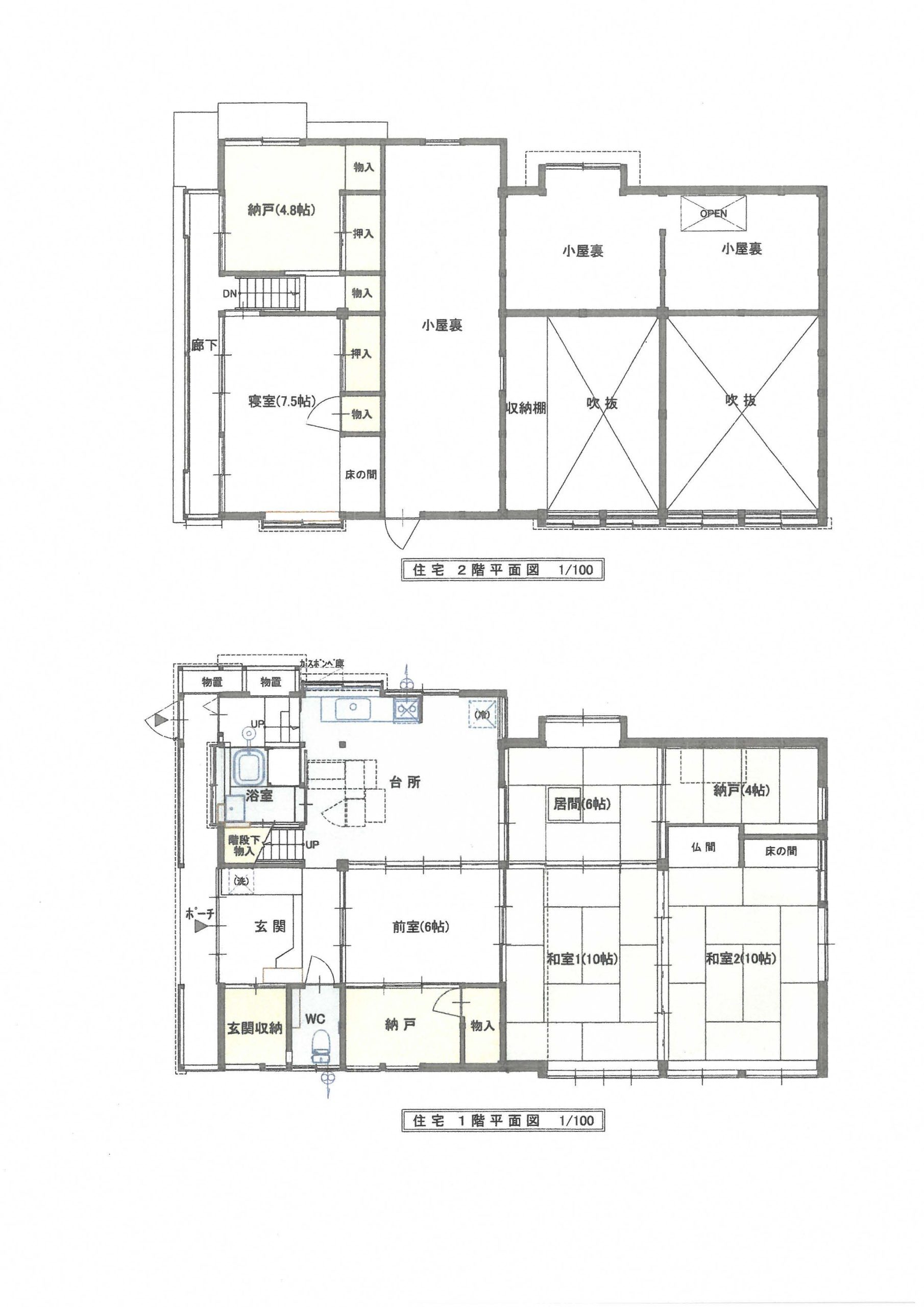
Residential Floor Layout

Description:
◾️First Floor: The ground floor is designed for both daily living and entertaining. It features a welcoming entrance (Genkan) with a dedicated shoe closet, a kitchen/dining area (Daidokoro), a separate bathroom and WC, and four versatile Japanese-style rooms. These include two large 10-tatami mat rooms (approx. 16 m² / 172 ft² each) that can be combined for larger gatherings, a 6-tatami living room (Ima), and a 6-tatami front room (Zenshitsu). The floor is rich with storage, including multiple closets (Oshiire), a pantry (Nando), and under-stair storage. ◾️Second Floor: The upper floor provides a more private space. It consists of a 7.5-tatami mat bedroom (Shinshitsu) (approx. 12 m² / 130 ft²), a large 4.8-tatami mat storage room (Nando), and extensive attic space (Koya-ura), offering abundant storage solutions.

Rooms:
3

Additional details

  • Layout: 3 rooms + Living, Dining & Kitchen + Storage
  • Structure: Wooden, 2-story
  • Building Area: 154 m² (1,658 ft²)
  • Land Area: 36,641 m² (394,398 ft²)
  • Nearest Station: 25 min drive from Mushigawa-Ōsugi Station
  • Parking: Space for 3 cars
  • Features & Equipment: Air Conditioning (2+ units), System Kitchen, 2 Toilets, Monitor Intercom, Tatami Rooms, Storage Shed, Wood-fired Bathtub
  • Utilities: Public Water, Propane Gas, Septic Tank
  • Orientation: South-facing with excellent sunlight
  • Tags / Highlights: Large 10+ tsubo garden, Unobstructed front view, Quiet residential area, Ample parking, Ideal for nature lovers and hobby farming

Address

  • Address 623-1 Yasuzukaku Takasawa, Joetsu, Niigata
  • City Joetsu City
  • State/county Niigata
  • Zip/Postal Code 942-0538
  • Area Yasuzuka Dostrict
  • Country Japan

Contact Information

Akiyas Japan
  • Akiyas Japan
  • +81-70-8403-0320 WhatsApp
View Listings

Enquire About This Property

Compare listings

Compare
Akiyas Japan
  • Akiyas Japan
This site does not sell or broker properties. All prices and information are current as of the time of listing; please confirm details directly with Akiyas Japan.